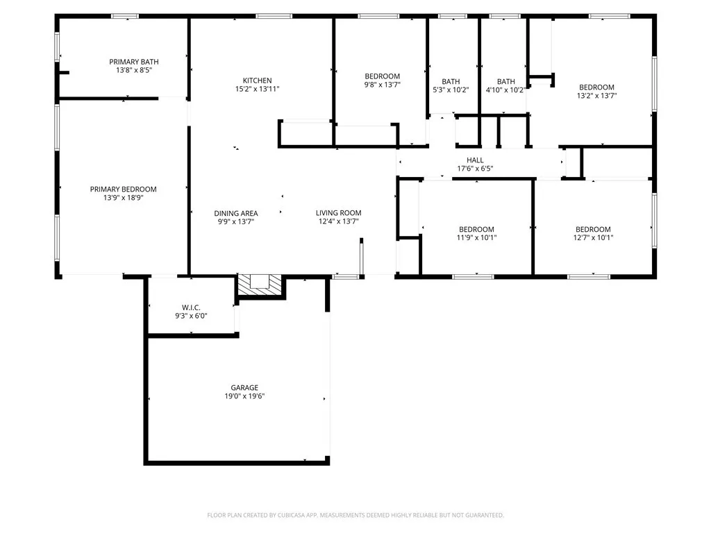
Great location and great price single family home in Rowland Heights, close to restaurants, banks and supper market. spacious floor plan with 5 bed & 3 bath. Property need TCL. one big master suite added on without permits. Small portion of the attached two car garage was converted to be a walk in closet without permits. Property profile showed only 4 bed/2 bath. Property to be sold as it is, buyers to investigate and satisfy.
WS25223766
Residential - Single Family, 1 Story
4
2 Full
1961
Los Angeles
0.1499
Acres
Public Water, Private Water
1
Public Sewer
Loading...
The scores below measure the walkability of the address, access to public transit of the area and the convenience of using a bike on a scale of 1-100
Walk Score
Transit Score
Bike Score
Loading...
Loading...
